
Un desarrollo exclusivo donde la naturaleza y el lujo se encuentran.
Ubicado en un entorno privilegiado a orillas del Lago Gutiérrez, este proyecto combina residencias premium con un hotel cinco estrellas, ofreciendo una experiencia única en uno de los paisajes más imponentes de la Patagonia.
48 Residencias y un Hotel 5 Estrellas
24 Residencias
Superficie total: 202 m²
2 dormitorios – 3 ambientes
Superficie cubierta: 130 m² – Superficie semi cubierta: 30 m² – Superficie jardín: 42 m²
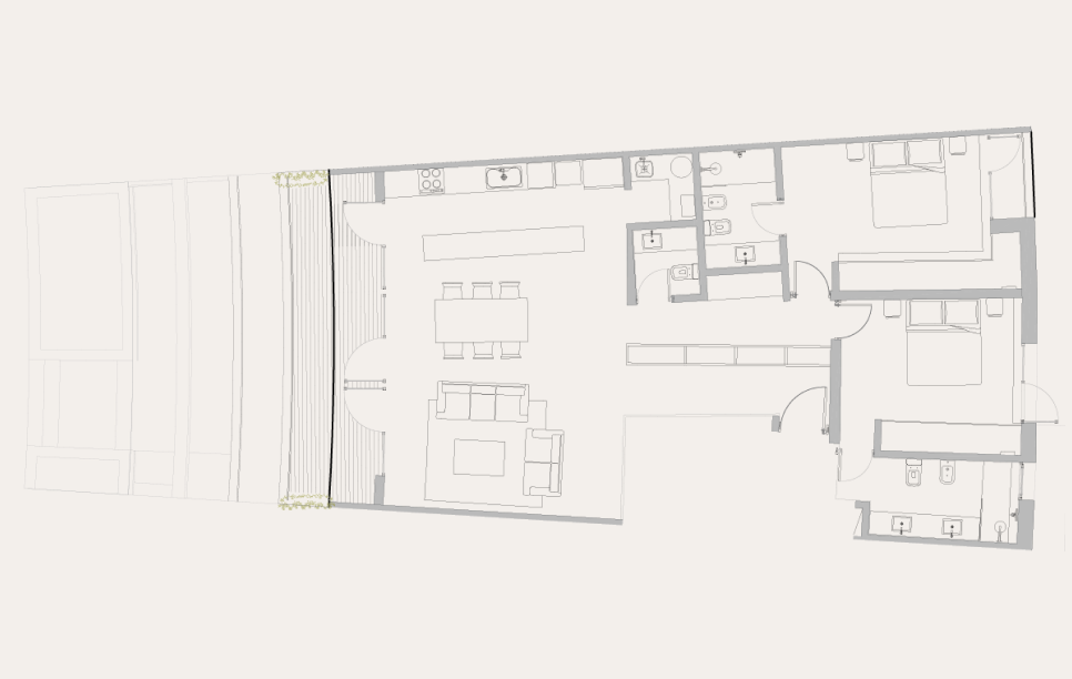
Superficie total: 173 m2
2 dormitorios + 1 dormitorio de servicio – 4 ambientes
Superficie cubierta: 143 m2 – Superficie semi cubierta: 21 m2 – Superficie terraza: 9 m2
Superficie total: 163 m²
2 dormitorios – 3 ambientes
Superficie cubierta: 143 m² – Superficie semi cubierta: 11 m² – Superficie terraza: 9 m²
Superficie total: 153 m²
2 dormitorios – 3 ambientes
Superficie cubierta: 133 m² – Superficie semi cubierta: 11 m² – Superficie terraza: 9 m²
Hotel 5 estrellas con encanto y sentido del hogar. Descansá mirando lagos y montañas que no existen en otro lugar en el mundo




Un desarrollo exclusivo donde la naturaleza y el lujo se encuentran.
Ubicado en un entorno privilegiado a orillas del Lago Gutiérrez, este proyecto combina residencias premium con un hotel cinco estrellas, ofreciendo una experiencia única en uno de los paisajes más imponentes de la Patagonia.
48 Residencias y un Hotel 5 Estrellas
24 Residencias
Superficie total: 202 m²
2 dormitorios – 3 ambientes
Superficie cubierta: 130 m² – Superficie semi cubierta: 30 m² – Superficie jardín: 42 m²
Superficie total: 173 m2
2 dormitorios + 1 dormitorio de servicio – 4 ambientes
Superficie cubierta: 143 m2 – Superficie semi cubierta: 21 m2 – Superficie terraza: 9 m2
Superficie total: 163 m²
2 dormitorios – 3 ambientes
Superficie cubierta: 143 m² – Superficie semi cubierta: 11 m² – Superficie terraza: 9 m²
Superficie total: 153 m²
2 dormitorios – 3 ambientes
Superficie cubierta: 133 m² – Superficie semi cubierta: 11 m² – Superficie terraza: 9 m²
Hotel 5 estrellas con encanto y sentido del hogar. Descansá mirando lagos y montañas que no existen en otro lugar en el mundo



